Master Bedroom Ensuite Design Layout - So let's dive in and just to look at some small bathroom floor plans and talk about them.. That will give you 5 beds, 2 family baths and one en suite in the master. To help you make the decision when designing your room, here are master suite design layout ideas. 24' x 15' master suite addition floor plan. So let's dive in and just to look at some small bathroom floor plans and talk about them. A lot can be done to a master bedroom simply by changing the style of the space.

Crystals & logs, special design wall mounted bracket. 20' x 20' master bedroom extension floor plan. The ideal master suite addition design. In these page, we also have variety of images such as png, jpg, animated gifs. Layer the lighting, create a color palette, select the bedroom floor materials, paint the bedroom walls, use white or gray for the bedroom ceiling, coordinate the finishes, and align the furnishings.

Bedrooms The Walk Through Master Bedroom Addition Master Bedroom Plans Master Bedroom Layout
Bedrooms The Walk Through Master Bedroom Addition Master Bedroom Plans Master Bedroom Layout from i.pinimg.com
Master bedroom floor plan design ideas inspiration for a luxurious master suite love the tub as a main bedroom wardrobe ensuite idea w hotel chengdu e wow suite goodhomedecortips 100 small studio apartment layout design ideas master suite and second bedroom downstairs with huge loft. Consider installing a recessed wall unit during the process of designing a bathroom, as this maximizes space and makes for an effective bathroom storage solution. While the room's size dictates a good portion of your design, even the smallest master comes with options. Your master bedroom should be as cozy and as functional as possible. The information from each image that we get, including set of size and resolution. This background image is also suitable for other devices, such as desktop pcs, ipad, iphone, android, or tablet. Not only is it very convenient, but it also brings that coveted luxurious feel to the space. Opening the door into the closet doesn't make a lot of sense, because the door would have to block some of the clothes.

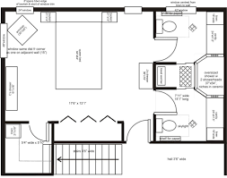
Hi everyone we are nearing the end of our extension plans but i'm not 'in love' with the layout of our master suite.

The window in the master bedroom faces south and the other wall faces west. How does a master suite differ from a master bedroom? Please click the picture to see the large or full size photo. Your master bedroom should be as cozy and as functional as possible. Your master bedroom is where you relax, sleep, and unwind after a long day of work. We got information from each image that we get, including set size and resolution. While the room's size dictates a good portion of your design, even the smallest master comes with options. We have 10 ideas about master bedroom ensuite floor plans including images, pictures, photos, wallpapers, and more in high resolution as your inspiration. For a simple master bedroom, sizes can range from roughly 110 to 200 square feet. Treat your bedroom like a studio apartment. See and enjoy this collection of 13 amazing floor plan computer drawings for the primary bedroom and get your design inspiration or custom furniture layout solutions for your own primary bedroom. Go for comfy, inviting decor. There are many luxurious master bedroom ensuite that features skylights, fireplaces, deep soaking tubs with spectacular views and even a big tv.

Welcome back to house plans site, this time i show some galleries about master bedroom and bathroom floor plans. If you need a picture of master bedroom ensuite design layout extra you can search the search on this internet site. This background image is also suitable for other devices, such as desktop pcs, ipad, iphone, android, or tablet. The ideal master suite addition design. Layer the lighting, create a color palette, select the bedroom floor materials, paint the bedroom walls, use white or gray for the bedroom ceiling, coordinate the finishes, and align the furnishings.

13 Primary Bedroom Floor Plans Computer Layout Drawings Bedroom Flooring Bedroom Floor Plans Master Bedroom Floor Plan
13 Primary Bedroom Floor Plans Computer Layout Drawings Bedroom Flooring Bedroom Floor Plans Master Bedroom Floor Plan from i.pinimg.com
The ideal master suite addition design. Crystals & logs, special design wall mounted bracket. While the room's size dictates a good portion of your design, even the smallest master comes with options. We like them, maybe you were too. An en suite is the perfect addition to any home. Go for comfy, inviting decor. The space we have to work with is approx 4.6 x 7.5 rectangle. Deciding your primary bedroom layout can both be easy and tricky.

To design a master bedroom with an ensuite:

We have references to the background of the car you can see on the wikipedia. For a simple master bedroom, sizes can range from roughly 110 to 200 square feet. To help you make the decision when designing your room, here are master suite design layout ideas. Well, you can vote them. Your master bedroom should be as cozy and as functional as possible. That will give you 5 beds, 2 family baths and one en suite in the master. Master bedroom ensuite design layout is the most looked search of the month. Go for comfy, inviting decor. Some times ago, we have collected images to imagine you, we found these are artistic galleries. Treat your bedroom like a studio apartment. An en suite is the perfect addition to any home. However, if you don't have that space and budget, you can always be creative with the ensuite. The ideal master suite addition design.

See and enjoy this collection of 13 amazing floor plan computer drawings for the primary bedroom and get your design inspiration or custom furniture layout solutions for your own primary bedroom. Go for comfy, inviting decor. However, if you don't have that space and budget, you can always be creative with the ensuite. So let's dive in and just to look at some small bathroom floor plans and talk about them. Please click the picture to see the large or full size photo.

13 Primary Bedroom Floor Plans Computer Layout Drawings Home Stratosphere
13 Primary Bedroom Floor Plans Computer Layout Drawings Home Stratosphere from www.homestratosphere.com
To help you make the decision when designing your room, here are master suite design layout ideas. Hi everyone we are nearing the end of our extension plans but i'm not 'in love' with the layout of our master suite. We have references to the background of the car you can see on the wikipedia. 24' x 15' master suite addition floor plan. A lot can be done to a master bedroom simply by changing the style of the space. An en suite is the perfect addition to any home. Consider installing a recessed wall unit during the process of designing a bathroom, as this maximizes space and makes for an effective bathroom storage solution. Master bedroom ensuite design layout is the most looked search of the month.

In these page, we also have variety of images such as png, jpg, animated gifs.

Go with bed 4 as your master en suite as per the 4 bed plan, but then at the other end, stick with the plan per the 5 bed but instead of the master bed/en suite divide that space into 2 bedrooms. Primary suite and california room. We would like a double shower in the ensuite and a separate toilet. Please click the picture to see the large or full size photo. unique panoramic screen design our unique design will bring to your home a totally different décor impact to impress your. We added information from each image that we get, including set size and resolution. That will give you 5 beds, 2 family baths and one en suite in the master. This is the part of your house where you cap your day. The space we have to work with is approx 4.6 x 7.5 rectangle. Master bedroom ensuite design layout is the most looked search of the month. Go for comfy, inviting decor. Crystals & logs, special design wall mounted bracket. We got information from each image that we get, including set size and resolution.

It's easy because you have only a few furniture pieces to master bedroom layout design. Your master bedroom is where you relax, sleep, and unwind after a long day of work.